“微信扫一扫”进入"可可试卷"微信小程序刷题
第341题 水泥混凝土面板出现轻微断裂、裂缝无剥落时,可以采用的灌缝工艺有()。
A.直接灌浆法
B.凹槽灌浆法
C.压注灌浆法
D.扩缝灌浆法
E.钻孔灌浆法
参考答案:ACD
解析:对于轻微断裂、裂缝无剥落或轻微剥落、裂缝宽度小于3mm的断板,宜采用灌入胶粘剂的方法灌缝封闭。灌缝工艺有直接灌浆法、压注灌浆法、扩缝灌注法。
第342题 钻孔灌注桩清孔的方法有()。
A.抽浆法
B.砂浆置换钻渣清孔法
C.掏渣法
D.喷射清孔法
E.注水法
参考答案:ABCD
解析:清孔的方法有:抽浆法、换浆法、掏渣法、喷射清孔法以及用砂浆置换钻渣清孔法等,应根据设计要求、钻孔方法、机具设备和土质条件决定。
第343题 下列隧道岩体中,宜优先采用机械开挖的有()。
A.巨厚层状砂岩
B.松散结构黄土
C.饱和粉细砂层
D.较完整花岗岩
E.泥质胶结碎石土
参考答案:BCE
解析:
土质围岩应采用机械开挖。软弱破碎围岩宜优先采用机械开挖。
机械开挖应根据隧道特点、围岩特性和掌子面稳定情况、断面大小、开挖和支护出渣效率、动力提供条件和工期要求、场地条件及经济性等因素,选择合适的机械、开挖方法、开挖参数。
第344题 关于交通安全设施施工技术要求的说法,正确的有()。
A.门架式标志、悬臂式标志应控制标志板上缘至路面净空
B.在标线工程正式开工前,应进行实地试划试验
C.标线喷涂施工应在白天进行,风雨天、温度低于5℃时应暂停施工
D.在安装轮廓标时,同一类型的轮廓标安装高度应一致
E.波形护栏的起、终点应根据设计要求进行端头处理
参考答案:BDE
解析:
A选项正确说法:对于门架式标志、悬臂式标志应注意控制标志板下缘至路面的净空,对于单柱式标志、双柱式标志的内边缘至土路肩边缘的距离应满足有关规范和设计的要求。
C选项正确说法:喷涂施工应在白天进行,风雨天、温度低于10℃时应暂时停止施工。
第345题 在公路工程标准体系中,属于公路管理板块的模块有()。
A.装备
B.造价
C.检测评价
D.车路协同
E.信息系统
参考答案:ABE
解析:
公路管理板块的模块包括站所、装备、信息系统、执法、路域环境、造价。“检测评价” 属于公路养护板块,“车路协同”属于公路运营板块。

第346题 根据《注册建造师执业工程规模标准(试行)》,属于二级建造师执业范围的有()。
A.单项合同额为5000万元的二级公路
B.单跨长为30m的二级公路桥梁工程
C.桥长为40m的一级公路桥梁工程
D.隧长为500m的一级公路隧道工程
E.隧长为1000m的二级公路隧道工程
参考答案:BCD
解析:
单项合同额>3000万,隧长为1000m的隧道工程,均属于大型工程。二级注册建造师担任中小型工程项目负责人。

第347题 关于分包合同管理的说法,正确的有()。
A.监理人就分包工程施工发布的任何指示应同时发给承包人和分包人
B.发包人对分包合同的管理主要表现为对分包工程的批准
C.分包人应自行编制分包工程的施工方案,经承包人审查同意后实施
D.分包人对其分包的工程向承包人负责,并向发包人承担连带责任
E.分包人因发包人原因造成合法利益损害,应向监理人提出索赔报告
参考答案:BD
解析:
A选项:监理人只有与承包人有监理与被监理的关系,对分包人在现场施工不承担协调管理义务。只是依据施工合同对分包工作内容及分包人的资质进行审查,行使确认权或否定权;对分包人使用的材料、施工工艺、工程质量和进度进行监督。监理人就分包工程施工发布的任何指示均应发给承包人。
C选项:分包人应当自行编制分包工程的施工方案,经承包人审查同意后报监理人书面同意。
E选项:分包合同履行过程中,当分包人认为自己的合法权益受到损害,无论事件起因于发包人、监理人,还是承包人,他都只能向承包人提出索赔要求。如果是因发包人或监理人的原因或责任造成了分包人的合法利益的损害,承包人应及时按施工合同规定的索赔程序,以承包人的名义就该事件向监理人提交索赔报告。
第348题 关于二级公路隧道总体质量检验基本要求的说法,正确的有()。
A.主洞拱部不滴水
B.车行横通道拱部不滴水
C.主洞边墙不渗水
D.人行横通道边墙不淌水
E.路面不积水
参考答案:BCD
解析:
隧道总体质量检验
(1)基本要求
①隧道衬砌内轮廓及所有运营设施均不得侵入建筑地界。
②洞口设置应满足设计要求。
③洞内外的排水系统设置应满足设计要求。
④高速公路、一级公路和二级公路隧道拱部、边墙、路面、设备箱洞应不渗水,有冻害地段的隧道衬砌背后不积水、排水沟不冻结,车行横通道、人行横道等服务通道拱部不滴水,边墙不淌水。
⑤三级、四级公路隧道拱部、边墙应不滴水,设备箱洞不渗水、路面不积水,有冻害地段的隧道衬砌背后不积水、排水沟不冻结。
第349题 关于安全绳使用要求的说法,正确的有()。
A.严禁安全绳用作悬吊绳
B.安全绳与悬吊绳应共用连接器
C.新更换的安全绳应加设绳套
D.安全绳上不得挂设2个以上的挂钩
E.安全绳不得打结使用
参考答案:ACE
解析:
安全带使用除应符合现行《安全带》GB6095—2021的规定外,还应符合下列规定:
A.安全带除应定期检验外,使用前还应进行检查。织带磨损、灼伤、酸碱腐蚀或出现明显变硬、发脆以及金属部件磨损出现明显缺陷或受到冲击后发生明显变形的,应及时报废。
B.安全带应高挂低用,并应扣牢在牢固的物体上。
C.安全带的安全绳不得打结使用,安全绳上不得挂钩。
D.缺少或不易设置安全带吊点的工作场所宜设置安全带母索。
E.安全带的各部件不得随意更换或拆除。
F.安全绳有效长度不应大于2m,有两根安全绳的安全带,单根绳的有效长度不应大于1.2m。
G.严禁安全绳用作悬吊绳。严禁安全绳与悬吊绳共用连接器:新更换安全绳的规格及力学性能必须符合规定,并加设绳套。
参考答案:↓
解析:
1.(1)不正确。正确的技术要求:腐殖质土严禁作为填料。
(2)不正确。正确的技术要求:粉质土不得直接用于填筑冰冻地区的路床及浸水部分的路堤。
(3)正确。
(4)正确。
2.(1)“202-1-a清理现场”清单子目计量工程量:56900㎡
(2)“202-1-b砍伐树木”清单子目计量工程量:470+180=650棵
3. A的内容:路基基底原状土
B的内容:85%
地基表层土开挖的最小厚度:(0.46-0.36)+0.8=0.90(或0.9)m
4.还需做试验段施工的路堤:填石路堤、土石路堤。最佳含水率测定试验方法:表面振动压实仪法(或表面振动击实仪法)。
参考答案:↓
解析:
1.路拱坡度i为2%
(1)不正确。正确的技术要求:采用不同粒级的碎石和石屑时,宜将大粒径碎石铺在下层,中粒径碎石铺在中层,小粒径碎石铺在上层,洒水使碎石湿润后,再摊铺石屑。
(2)正确。
(3)正确。
(4)不正确。正确的技术要求:级配碎石施工完未做透层沥青或铺设封层之前,严禁(或不得、不可等否定词)开放交通。
2.传力杆中心距离基层顶面的安装高度h=22.0/2=11.0(或11)cm
3.构件A的名称:钢横模(或钢模或模板)
4.B、C原则:严谨、公正(B、C答案可互换)
5.仪器设备管理状态标识的主要信息还包括:设备名称、设备型号
参考答案:↓
解析:
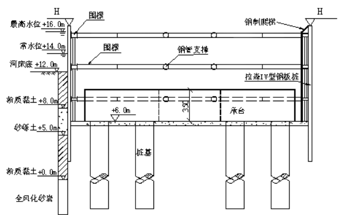
1.钢板桩适宜的施打顺序:从西开始,分南、北(或北、南)到东合龙。
高程H为+17.0(或17)m。
2.工序A:导向装置(或导向架)安装。
工序B:垫层混凝土浇筑(或封底混凝土浇筑或垫层砂浆浇筑或封底砂浆浇筑)。
3.重大事故隐患:未按要求开展变形监测。
4.漏水、局部涌砂处理措施:
①止水材料(棉絮、土工布或木屑装袋)捻缝(塞缝);
②注浆封堵;
③钢板桩内侧用沙袋、粘土袋码放堵漏;
④沿漏水、局部涌砂处钢板桩外侧重新补打一层钢板桩。
5. 错误1:“项目总工程师负责组织编制钢
板桩围堰重大事故隐患治理方案”。
改正:“项目负责人(或项目经理)负责组织编制钢板桩围堰重大事故隐患治理方案”。
错误2:“项目现场技术员对钢板桩围堰重大事故隐患治理过程实施全过程监督管理”。
改正:“项目专职安全员对钢板桩围堰重大事故隐患治理过程实施全过程监督管理”。
参考答案:↓
解析:
1.按长度分类,该隧道属于短隧道;按跨度分类,该隧道属于一般跨度隧道。
2. 构造物A的名称:钢筋网(或金属网)
图4中各工序的正确施工顺序:②③⑤④①(或23541)
3.确定喷射机工作压力还需考虑的另外两个因素:混凝土坍落度和喷射距离。
4.进行总体风险评估的理由:K3+850~K3+905为V级围岩,其长度为55m>50m(或V级围岩连续长度超过50m),按要求应进行总体风险评估。
隧道洞口失稳的监控量测控制措施:增加地表水下沉监控量测频率,分析洞口变形发展趋势。
B的名称:总承包单位技术负责人
C的名称:专业分包单位技术负责人(B、C答案可互换)
5.第(1)条错误、第(2)条错误。
第(1)条改正:隧道中线的精确定位必须采用不同方法进行计算核对。
第(2)条改正:中线桩位坐标计算书由项目总工程师进行审核并签字后作为技术交底的组成部分。