“微信扫一扫”进入"可可试卷"微信小程序刷题
第3581题 图中采用环链葫芦作升降动力时,应严密监视其运行情况, 及时排除( )正常运行的故障。

A.翻链、绞链和其他影响
B.绞链和其他影响
C.翻链和其他影响
D.其他影响
参考答案:A
解析:(必会题)JGJ 202-2010 4.7.5当采用环链葫芦作升降动力时,应严密监视其运行情况, 及时排除翻链、绞链和其他影响正常运行的故障。
第3582题 图为附着式升降脚手架的电源、电缆及控制柜的开关箱,其设置说法正确的是? ( )

A.开关箱内的电器配置和接线不影响安全使用的情况下,可以不经过漏保连接
B.配电箱、开关箱内的电器配置和接线严禁随意改动。
C.开关箱在架体内部,不需箱门
D.说法全部不正确
参考答案:B
解析:(必会题)JGJ 202-2010 4.6.6电源、电缆及控制柜等的设置应符合现行行业标准《施 工现场临时用电安全技术规范》JGJ46的有关规定。JGJ46-2005 8.3.10配电箱、开关箱内的电器配置和接线严禁随意改动。
第3583题 图中竖向主框架采用分段对接式结构。结构形式应为竖向标架或门型刚架形式等。各杆件的轴线应汇交于节点处,并应采用( )连接。

A.螺栓或焊接
B.铆钉
C.只能焊接
D.只能螺栓
参考答案:A
解析:(必会题)JGJ 202-2010 4.4.3竖向主框架可采用整体结构或分段对接式结构。结构形 式应为竖向标架或门型刚架形式等。各杆件的轴线应汇交于节点 处,并应采用螺栓或焊接连接,如不交汇于一点,应进行附加弯 矩验算;
第3584题 据图所示,对附着支承结构、防倾、防坠落装置等关键部件的加工件应进行100%检验;构配件出厂时,应提供出厂合格证。属于防倾装置的是 ( )。

A.①
B.②
C.③
D.④
参考答案:A
解析:(必会题)JGJ 202-2010 4.4.15 4 构配件应按工艺要求及检验规程进行检验;对附着支承 结构、防倾、防坠落装置等关键部件的加工件应进行 100%检 验;构配件出厂时,应提供出厂合格证。
第3585题 如图所示,存在的安全隐患主要是()

A.主节点未设置横向水平杆
B.安全网破损
C.钢管随意堆放
D.脚手架上存在垃圾未清理
参考答案:A
解析:(必会题)Jgj130-2011建筑施工扣件式钢管脚手架安全技术规范内第6.2.3条
第3586题 据图所示,下列说法正确的是( )

A.架体可以不设置扫地杆
B.扣件紧固度不用达到40N.M
C.顶托伸出长度符合要求,支撑搭设良好
D.应纵横向满设水平杆和扫地杆
参考答案:D
解析:(必会题)Jgj130-2011建筑施工扣件式钢管脚手架安全技术规范内第6.3.2条
第3587题 图中存在的安全隐患主要是( )。

A.立杆间距过大
B.立杆不得采用错接对接
C.没有设置安全通道
D.没有铺设脚手板
参考答案:B
解析:(必会题)Jgj130-2011建筑施工扣件式钢管脚手架安全技术规范内第6.3.5条
第3588题 图中悬挑工字钢存在主要问题的是( )

A.工字钢双螺帽未拧紧
B.工字钢压板厚度不足
C.工字钢长度不足
D.楼地面未清扫干净
参考答案:A
解析:(必会题)Jgj130-2011建筑施工扣件式钢管脚手架安全技术规范内第6.10.3条
第3589题 关于图示模板支撑主要安全隐患有( )。

A.内外架相连
B.立杆间距过大
C.顶托伸出长度过长
D.安全网破损
参考答案:A
解析:(必会题)Jgj130-2011建筑施工扣件式钢管脚手架安全技术规范内第9.0.5条
第3590题 关于图示主要安全隐患描述的是( )。

A.悬挑工字钢缺少反拉钢丝绳
B.安全网未设置
C.立杆底部悬空
D.工字钢设置间距过大
参考答案:A
解析:(必会题)Jgj130-2011建筑施工扣件式钢管脚手架安全技术规范内第6.10.4条
第3591题 关于图示脚手架在施工电梯断开处,主要存在的问题是( )。

A.架体水平防护缺失
B.架体上垃圾未清理
C.架体开口处未设置横向斜撑
D.架体阴阳角井字架缺失立杆
参考答案:C
解析:(必会题)Jgj130-2011建筑施工扣件式钢管脚手架安全技术规范内第6.6.5条
第3592题 如图所示,找出存在的安全隐患( )。

A.锚固环缺失一道
B.锚固环螺帽设置不足
C.工字钢锚固长度不足
D.锚固环螺帽出丝不足
参考答案:B
解析:(必会题)Jgj130-2011建筑施工扣件式钢管脚手架安全技术规范内第6.10.5条
第3593题 主体施工中,某工地5号楼作业层,如图存在的安全隐患有( )。

A.架体立杆搭设高度不足
B.模板存在破损
C.作业面垃圾未清理
D.立杆相邻接头未错开
参考答案:A
解析:(必会题)Jgj130-2011建筑施工扣件式钢管脚手架安全技术规范内第6.3.7条
第3594题 图中,根据建筑施工扣件式钢管脚手架安全技术规范内第6.10.2条规定,锚固型钢悬挑梁的 U 型钢筋拉环或锚固螺栓直径不宜小于( )㎜

A.14
B.18
C.16
D.20
参考答案:C
解析:(必会题)Jgj130-2011建筑施工扣件式钢管脚手架安全技术规范内第6.10.2条
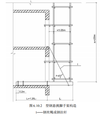
第3595题 如图所示,一次悬挑脚手架高度不宜超过()m。

A.18
B.19
C.20
D.22
参考答案:C
解析:(必会题)Jgj130-2011建筑施工扣件式钢管脚手架安全技术规范内第6.10.2条
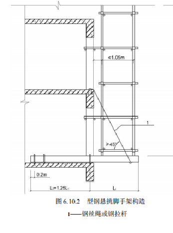
第3596题 关于图中悬挑钢梁型号及锚固件应按设计确定,钢梁截面高度不应小于 ( )mm。

A.140
B.160
C.180
D.200
参考答案:B
解析:(必会题)Jgj130-2011建筑施工扣件式钢管脚手架安全技术规范内第6.10.2条
第3597题 关于图示脚手架存在的安全隐患是( )。

A.立杆接头存在错接
B.连墙件被拆除
C.架体立杆间距过大
D.架体步距设置过大
参考答案:B
解析:(必会题)Jgj130-2011建筑施工扣件式钢管脚手架安全技术规范内第6.10.2条
第3598题 关于图示脚手架剪刀撑杆件搭接长度不应小于( )cm。

A.50
B.100
C.120
D.150
参考答案:B
解析:(必会题)Jgj130-2011建筑施工扣件式钢管脚手架安全技术规范内第6.3.6条
第3599题 关于图中脚手架连墙件垂直间距不应大于()m。

A.3
B.3.5
C.4
D.4.5
参考答案:C
解析:(必会题)Jgj130-2011建筑施工扣件式钢管脚手架安全技术规范内第6.4.4条
第3600题 如图所示,脚手架高度在24m及以下的双排脚手架间隔()m设置立面剪刀撑。

A.10
B.15
C.20
D.25
参考答案:B
解析:(必会题)Jgj130-2011建筑施工扣件式钢管脚手架安全技术规范内第6.6.3条