第663题
塔式起重机在作业过程中,可任意调整限位装置()。

A.可以
B.不可以
C.看情况
D.领导决定
参考答案:B
第664题
塔式起重机作业中遇有风速()应停止作业。

A.六级及以上
B.六级及以下
C.五级及以上
D.五级及以上
参考答案:A
第665题
塔式起重机的吊钩装置顶部至小车架下部的安全距离是如何确定的()。

A.根据钢丝绳的倍率
B.根据钢丝绳的直径
C.根据钢丝绳的长度
D.根据钢丝绳是否断丝
参考答案:A
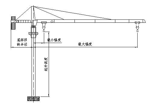
第666题
下图塔式起重机的最大工作幅度是指()。

A.吊钩垂直中心线与起重臂根部的水平距离
B.吊钩垂直中心线与回转中心线的水平距离
C.吊钩垂直中心线与起重臂前端的水平距离
D.吊钩垂直中心线与平衡臂的水平距离
参考答案:B
第667题
塔式起重机的安拆作业成员()信号司索工。

A.可以没有
B.必须有
C.可有可无
D.安全员决定
参考答案:B
第669题
在安装作业中不可吊物行走起重机是()。

A.汽车式起重机
B.履带式起重机
C.轮胎式起重机
D.塔式起重机
参考答案:A
第671题
请指出该施工升降机基础存在的问题()。

A.混凝土基础
B.基础积水严重
C.十字型基础
D.无基础
参考答案:B
第672题
请指出该施工升降机吊笼存在的问题()。

A.吊笼底板锈蚀严重
B.无吊笼门
C.吊笼底板完好
D.吊笼门完好
参考答案:A
第673题
施工升降机导轨架连接螺栓存在的问题()。

A.导轨架连接螺栓脱落
B.导轨架连接螺栓用双螺母固定
C.导轨架连接螺栓用单螺母固定
D.导轨架连接螺栓使用垫圈
参考答案:A
第674题
指出SCD型施工升降机天轮存在的问题()。

A.无防脱绳装置
B.无天轮
C.无钢丝绳
D.天轮安装在顶部
参考答案:A
第675题
指出施工升降机附着支座与建筑结构之间连接存在的问题()。

A.附着支座与建筑结构之间的梁侧模板未清除干净
B.附着支座与建筑结构之间用螺栓连接
C.附着支座与建筑结构之间连接螺栓用双螺母固定
D.附着支座与建筑结构之间用单螺母固定
参考答案:A
第676题
指出施工升降机导轨架连接螺栓存在问题()。

A.导轨架连接螺栓未加平垫
B.导轨架连接螺栓无螺母
C.导轨架连接螺栓用自锁螺母
D.导轨架连接螺栓加平垫
参考答案:A